
外観にお施主様の熱い思いを組み入れ、内部もおしゃれで家事、子育てがしやすい
間取りを実現しました。
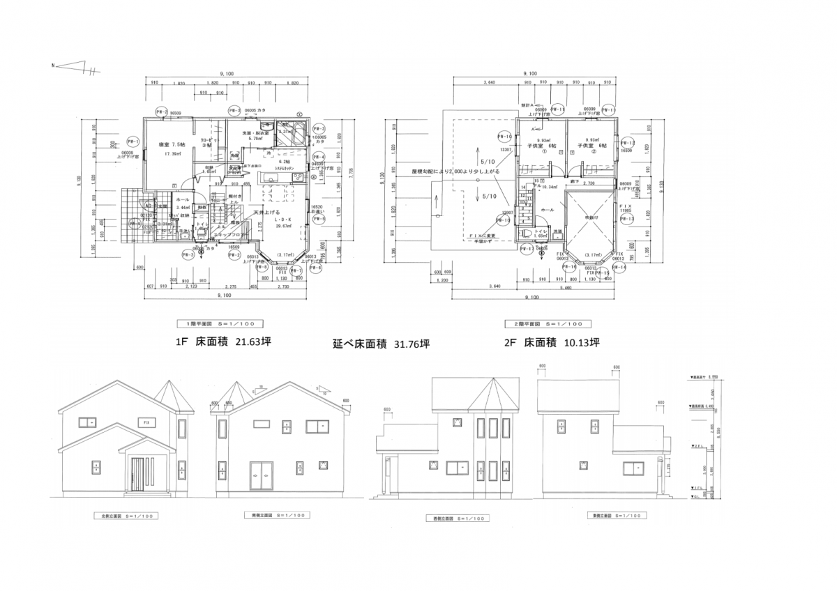
これまでの開成住宅にはなかった、新しいタイプのお家です。

4種類の外壁を使い分けて、おしゃれな外観に仕上がりました。

リビングの出窓を2階までの吹き抜けでタワーにしました。

吹き抜けの照明も、お施主様が一生懸命に選んでくださいました。

2階ホールの手摺りも鉄工所にオーダーメイドで発注、お施主様も大満足の
仕上がりです。

スキップフロアの床はクッションフロアで仕上げたので、お子様の遊び場に・・・

スキップフロアには、ご主人様のパソコンスペースもつくりました。

寝室の照明は、間接照明とダウンライトの組み合わせです。
ウォークインクローゼットの入り口は奥様のご希望で円形に。

スキップフロアの上のクロスには、スヌーピーが隠れていますよ。

キッチンはリクシルです、タッチレス水栓を採用しました。

ニッチも円形にして可愛くできています、スイッチ類をニッチ内に入れているので、
壁に出っ張りもなくすっきりとした仕上がりです。

お風呂もリクシルです、仕事の疲れを癒しお子様と一緒に楽しい入浴をお楽しみください。

洗面化粧台の隣に大工さん手作りの増先棚です。

ご主人様のこだわりの塔です、三角屋根が大変だったと大工さんも言っていましたが、
見事な出来栄えです。














