
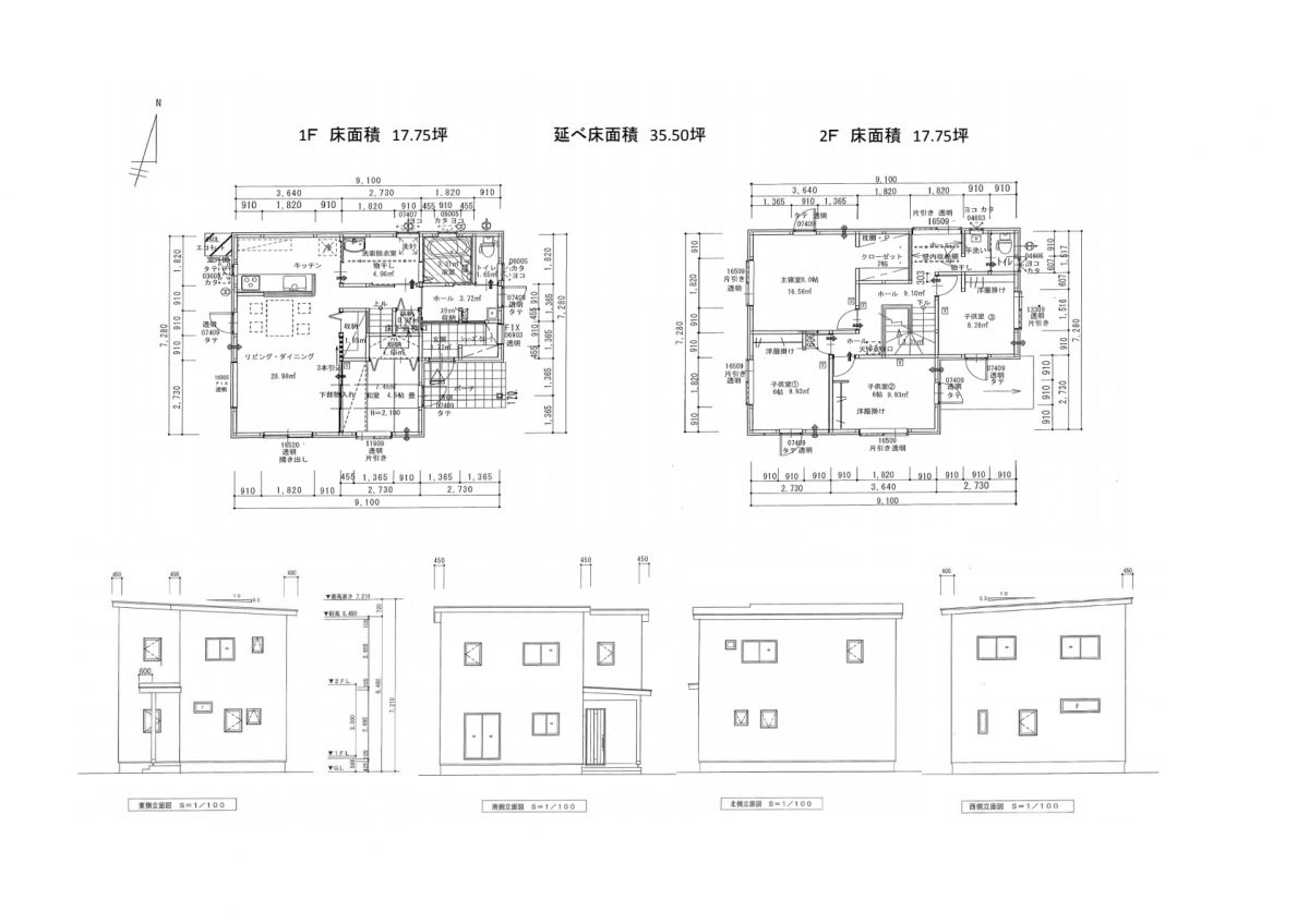
35.5坪の床面積で5LDKの無駄のない間取りと、性能向上計画認定で
UA値0.3W/㎡Kという高性能値を実現した、省エネと家事楽動線の両方を
実現しました。

地域型住宅グリーン化事業高度省エネ型の補助金対象物件です。

玄関ドアは、断熱性能をアップさせたYKKイノベストD50を採用。

小上がり和室でゆったりとお過ごしください。

小上がり下の収納も収納力抜群です。

小上がりから見たリビングは、開放感のある空間に仕上がりました。

洗面化粧台の隣には、大工さん手作りの収納棚。

キッチンカウンター前には、小物入れのニッチや本棚を造作しました。

ローカの壁には、磁石が使えるように細工しています。

玄関には、シューズクロークとカガミ付スリッパ収納、手洗い場と人気の
アイテムが勢ぞろい。










