
リビングクロークに、吹き抜けのあるリビングと家事動線
趣味室にこだわった間取りを実現しました。

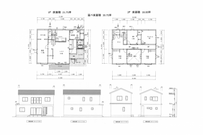
39.75坪、5LDK

黒のガルバをメインに、玄関部分は木目のサイディングで仕上げました。

吹き抜けの梁には、ハンモックをぶら下げゆったりとした時間をお過ごしください。

2階廊下の手すりは、鉄筋と木のこだわりの組み合わせで!

2階子供室の窓からは、リビングが見渡せます、1階と2階で楽しい親子の会話を。

2階趣味室は、ボルダリングが出来るように下地を作っています。

趣味室の照明は、映像も楽しめます。

趣味室、奥様リクエストの本棚は大工さん手づくりです。

トクラスのキッチンの奥には階段下の食品庫

2階ホール、階段を上るとコンクリートの壁?実はクロスです。











